Résidence intimiste 35 logements au total : 26 logements en accession allant du studio au 4 pièces (seuls 2 T4 en attique) 2 bâtiments sur un socle de parking enterré : BAt A entrée de parcelle R+ 3 Bât B R+2+attique
Environnement pavillonnaire et grands collectifs haut R+8 et tour R+15.
Grand espace commun végétalisé et ombragé grâce aux arbres implantés sur celui-ci. Attique, balcons et jardins privatifs Double orientation pour la plupart des logements
Locaux vélos en RDC et sous-sol + arceaux en surface à proximité des halls Caves en RDC et sous-sol et celliers Stationnements au sous-sol : 17 places boxées et non boxées.
Livraison 2T 2025
Disponible :
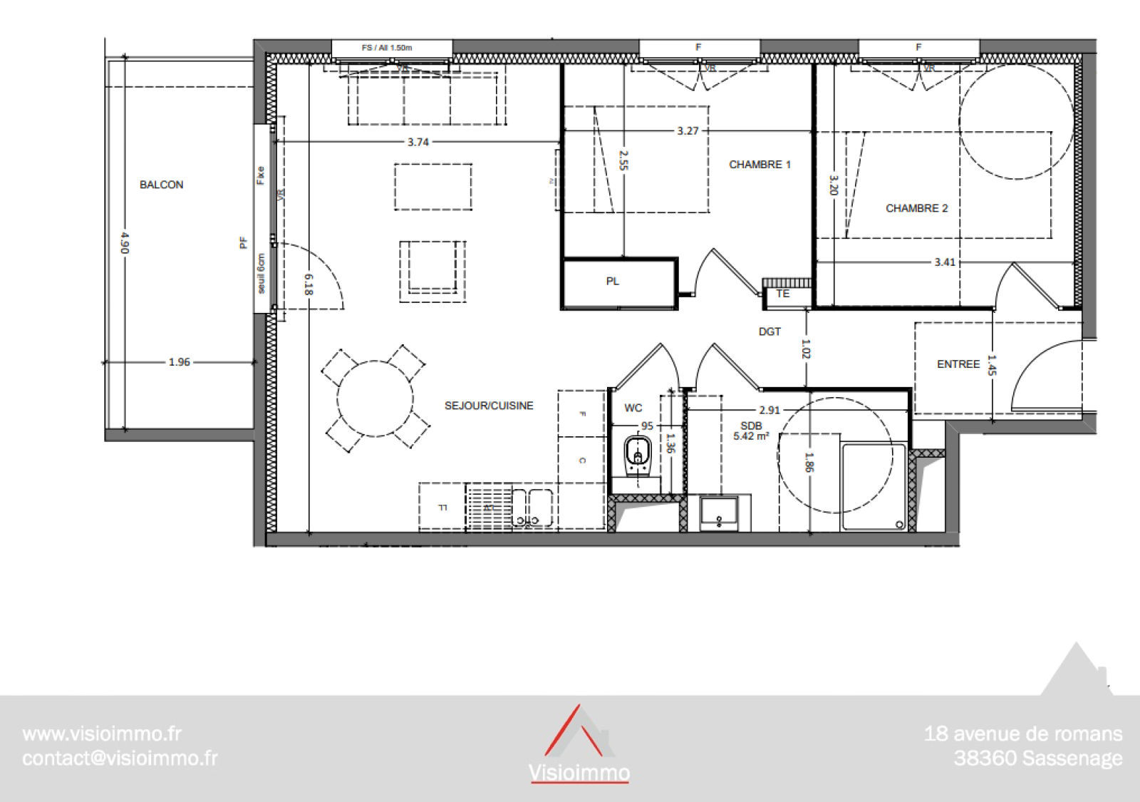
10 lots type T3 à partir de 286 000 €

