Rue Hector Berlioz à coté de l'Eglise Saint-Vincent / Le Chevallon de Voreppe
Situé au 1er et dernier étage d’une charmante bâtisse en pierres, au sein d’une petite copropriété intimiste et sécurisée, découvrez ce duplex 4 pièces en plateau de 78 m², offrant un beau potentiel d’aménagement selon vos envies. Vidéo du bien disponible sur demande.
Un plan optimisé, proposé par un architecte, vous permet de vous projeter facilement dans ce futur lieu de vie :
Au premier niveau, vous trouverez :
-
Une entrée avec placards
-
Des toilettes séparées
-
Une spacieuse pièce de vie de 36 m², baignée de lumière grâce à ses trois grandes fenêtres et sa double porte-fenêtre ouvrant sur un agréable balcon de 5 m² offrant une jolie vue sur nos massifs
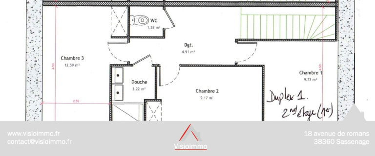
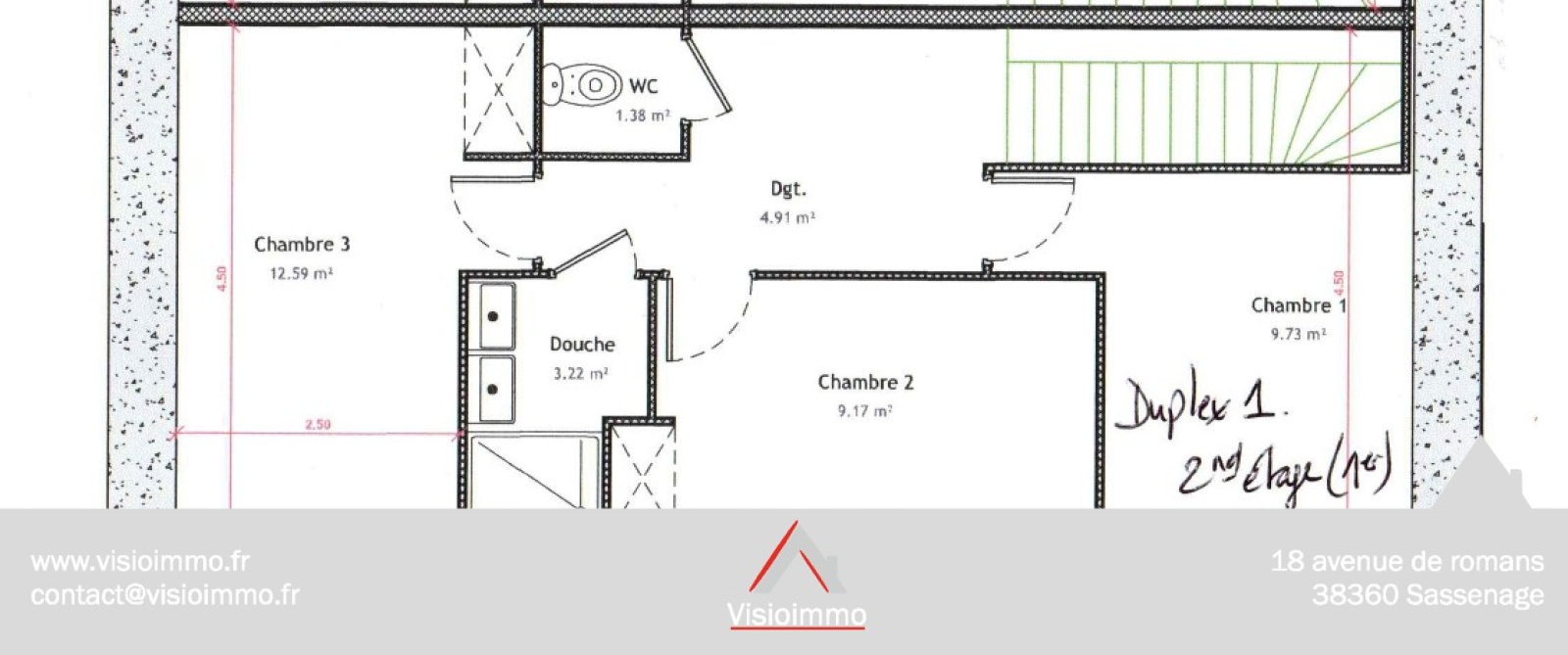
À l’étage (poutres en bois apparentes) :
-
Trois chambres de 9 m², 10 m² et 12,60 m²
-
Une salle de bains avec douche
-
Des toilettes indépendantes
Ce plan est bien entendu modifiable par notre architecte selon vos envies !
A noter également :
-
Un cellier situé en rez-de-chaussée de la bâtisse
-
Compteur électrique et compteur d'eau individuel
-
Une place de parking privative
-
Une copropriété à taille humaine, composée de 2 maisons et 4 appartements, fermée par un portail manuel
-
Un espace poubelles aménagé à l’entrée
Ce bien représente une belle opportunité pour les amateurs de rénovation ou les investisseurs souhaitant créer un logement à leur image, dans un environnement calme et authentique.
À visiter sans tarder ! Vidéo du bien disponible sur demande.
Le prix de ce bien est de 195 575 euros Frais d'agence inclus.
POUR TOUS RENSEIGNEMENTS COMPLEMENTAIRES ET VISITES, CONTACTER VALERIE MICHELI AU 06 17 60 18 65.
VOUS AVEZ UN PROJET DE VENTE ? ESTIMATION OFFERTE SANS ENGAGEMENT.
Les informations sur les risques auxquels ce bien est exposé sont disponibles sur le site Géorisques : www.georisques.gouv.fr. Cette annonce a été publiée par un agent commercial.

