Superbe villa T5 neuve mitoyenne en fin de construction sur un terrain de 292 m².
Située dans un environnement calme, cette maison moderne allie confort, performance énergétique et qualité de vie.
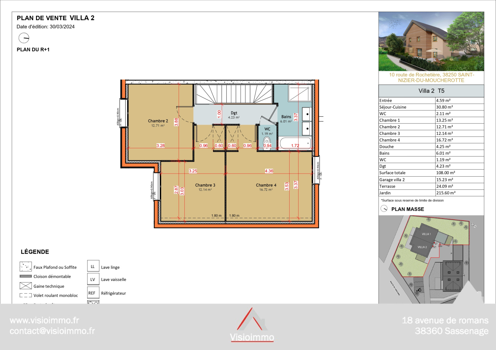
Agencement :
•Rez-de-chaussée : séjour/cuisine lumineux de 30,80 m², une suite parentale (chambre 13,25 m² + salle d’eau 4,25 m²), WC indépendant.
•Étage : 3 chambres (dont une de 16,72 m² ), salle de bain de 6 m², WC indépendant.
Prestations haut de gamme :
•Maison conforme à la norme RE 2020 (excellente isolation, aucune déperdition de chaleur, faible consommation énergétique)
•Pompe à chaleur & chauffage au sol
•Isolation intérieure et extérieure
•VMC double flux
•Garantie décennale
Extérieur :
Terrain de 292 m²
Sationements : garage de 15 m² + place de parking
Livraison prévue fin février 2026 (hors peinture et sols souples)
Frais de notaire réduit
Une opportunité rare d’acquérir une maison neuve, moderne et économe, prête à accueillir votre famille dans un court délai !
Les informations sur les risques auxquels ce bien est exposé sont disponibles sur le site Géorisques : www.georisques.gouv.fr. Cette annonce a été publiée par un agent commercial.
POUR TOUS RENSEIGNEMENTS COMPLEMENTAIRES ET VISITE, CONTACTER VALERIE MICHELI AU 06 17 60 18 65. VOUS AVEZ UN PROJET ? ESTIMATION OFFERTE | ACHAT- VENTE-LOCATION

